ゾンネンハイム牛込 1階
新宿区市谷柳町「ゾンネンハイム牛込」が登場
都営大江戸線「牛込柳町」駅徒歩3分の好立地!
2路線3駅利用可能な便利な立地。
都心部や郊外へのアクセス良好!
近隣には飲食店や商業施設も多数あり、お買い物やお食事を楽しめます♪
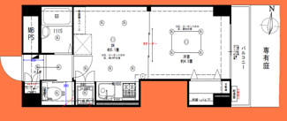
専有面積約27.11㎡の1DK!リノベーション済みの綺麗な室内です!
家庭菜園や趣味におすすめな専用庭つき!
新宿区の不動産の事ならシルバシティへ!
-
ローンシミュレーションこの物件を購入した場合の、月々の支払い価格の一例です。借り入れを保証するものではございません。
- 返済期間
-
- 金利
-
- ボーナス時の増額(1回分)
-
- 借入金額:
-
- 頭金:
-

- 毎月の返済額:
(※元利均等方式 金利5.00%まで ※返済年数5~50年まで入力できます)
(※ボーナスは年2回で計算しています。1000万円まで入力できます)
(※物件購入時、その他諸費用が発生する場合がございます)
情報の見方担当者のコメント 山中正之

- 都営大江戸線「牛込柳町」駅徒歩3分の好立地!
2路線3駅利用可能な便利な立地。
都心部や郊外へのアクセス良好!
近隣には飲食店や商業施設も多数あり、お買い物やお食事を楽しめます♪
専有面積約27.11㎡の1DK!リノベーション済みの綺麗な室内です!
家庭菜園や趣味におすすめな専用庭つき!
即日ご内覧・お引渡し可能です。
お問合せお待ち致しております。
ポイント・特徴
物件概要
【中古マンション】 物件番号:99865803 情報更新日:2026年04月17日 次回更新予定日:2026年05月01日所在地 東京都新宿区市谷柳町48 交通 間取り/詳細 1DK 専有面積/バルコニー面積 27.11㎡/3.60㎡ ルーフバルコニー面積/テラス面積/専用庭面積 -/-/- 価格 2,599万円 管理費 9,680円 修繕積立金 5,530円 修繕積立基金 - 権利金 - 駐車場/月額料金 -/- 土地の敷金/保証金 -/- 借地料/借地期間 -/- 土地権利 所有権 国土法届出要否 不要 用途地域 - 地勢 - 種別/構造 中古マンション/鉄筋コンクリート 向き 東 築年月(築年数) 1979年 3月 (築47年) 所在階/階建 1階/7階建 棟総戸数/販売戸数 50戸/- 管理組合有無 - 管理形態 管理会社に全部委託 管理員の勤務形態 日勤 管理会社 (株)大京アステージ 取引態様 仲介 現況 空家 引渡し 即時 建築確認番号 - 物件番号 99865803 取引条件の有効期限 2026年05月01日 リフォーム 2025年12月
キッチン 浴室 トイレ 壁 床 全室
設備条件 - 陽当り良好
- 閑静な住宅地
- 室内洗濯機置場
- フローリング
- バルコニー
- 都市ガス
- 公営水道
- 公共下水
- エレベーター
- 敷地内ごみ置き場
- コンロ2口以上
- システムキッチン
- 温水洗浄便座
- エアコン
- 収納豊富
- CATV
- TVモニタ付インターホン
- 防犯カメラ
- 24時間ゴミ出し可
備考 ★「ゾンネンハイム牛込」★
・「ゾンネンハイム牛込」は好立地!
都営大江戸線「牛込柳町」駅徒歩3分の好立地!
2路線3駅利用可能な便利な立地。
都心部や郊外へのアクセス良。
近隣には飲食店や商業施設も多数あり、お買い物やお食事を楽しめます♪
・充実の室内設備が魅力でペットの飼育が可能!
浄水器・エアコン・温水便座・シューズボックス、他。
【掲載物件更新】
新宿区・渋谷区を中心に目黒区や港区の不動産情報も豊富にご紹介しております。素敵なマイホームを一緒に探しましょう。
私たちが大切にしていることは、お客様のご都合に合わせられるフレキシブルな行動力です。
お客様に将来「この不動産を購入して良かった、シルバシティで紹介を受けて良かった」と言われる仕事を目指します。
そのために、押し売りの営業は一切いたしません。
また、不動産の専門家が、住宅購入や資金計画など丁寧にご説明いたします。
お客様に喜んで頂けるよう、精一杯務めさせて頂きます。
☆新宿区の不動産の事ならシルバシティへお任せください☆
TEL:0120-133-468条件(その他) 専用庭使用料月:500円 取扱会社 - 株式会社シルバシティ
- 東京都目黒区青葉台3丁目2-12 ヤクシビル3階
- TEL:0120-133-468
- 東京都知事 (2) 第103963号
- 公益社団法人 東京都宅地建物取引業協会
※地図上に表示される物件の位置は付近住所に所在することを表すものであり、実際の物件所在地とは異なる場合がございます。
物件お問い合わせ
- 掲載物件数
-
件
- 本日の更新件数
-
件
- 会員物件数
-
件
同じエリアの中古マンション
この物件を見た方へのお勧め物件
- ライオンズマンション西新宿第5
- 2,750万円 1DK/31.90㎡
- 東京都新宿区西新宿4丁目
- 都営大江戸線「西新宿五丁目」駅 徒歩4分
- マンション高田馬場
- 2,880万円 2K/34.21㎡
- 東京都新宿区西早稲田3丁目
- 山手線「高田馬場」駅 徒歩8分
- ハイネス大久保
- 2,298万円 1K/25.49㎡
- 東京都新宿区北新宿2丁目
- 総武線「大久保」駅 徒歩11分
- 新宿ローヤルコーポ
- 2,080万円 1R/22.94㎡
- 東京都新宿区西新宿8丁目
- 丸ノ内線「西新宿」駅 徒歩2分
- ルックハイツ北新宿壱番館
- 3,680万円 1DK/29.75㎡
- 東京都新宿区北新宿1丁目
- 総武線「大久保」駅 徒歩6分












