ガーデンホーム笹塚 8階
渋谷区幡ヶ谷3丁目に「ガーデンホーム笹塚」が登場!
京王線笹塚駅から徒歩約8分・幡ヶ谷駅から徒歩約13分、丸ノ内線方南町駅から徒歩約17分。
2路線3駅利用可能な便利な立地です。
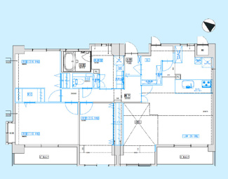
南西向き。最上階。フルリノベ。専有面積約100.74㎡。3LDK。
京王線・丸ノ内線の不動産の事ならシルバシティへお任せください。
-
ローンシミュレーションこの物件を購入した場合の、月々の支払い価格の一例です。借り入れを保証するものではございません。
- 返済期間
-
- 金利
-
- ボーナス時の増額(1回分)
-
- 借入金額:
-
- 頭金:
-

- 毎月の返済額:
(※元利均等方式 金利5.00%まで ※返済年数5~50年まで入力できます)
(※ボーナスは年2回で計算しています。1000万円まで入力できます)
(※物件購入時、その他諸費用が発生する場合がございます)
情報の見方担当者のコメント 梅津修二

- 京王線笹塚駅から徒歩約8分!駅前商店街で生活利便性◎中幡小学校まで徒歩約7分でお子様の通学も安心の距離♪専有面積広々約100.74㎡!お子様も個室が持てる間取り、家族が集まるLDKは約20帖!南西向き最上階で日当たり通風眺望良好です
ポイント・特徴
物件概要
【中古マンション】 物件番号:101824807 情報更新日:2026年02月26日 次回更新予定日:2026年03月10日所在地 東京都渋谷区幡ヶ谷3丁目76-5 交通 間取り/詳細 3LDK 専有面積/バルコニー面積 100.74㎡/10.87㎡ ルーフバルコニー面積/テラス面積/専用庭面積 -/-/- 価格 1億5,000万円 管理費 15,540円 修繕積立金 15,700円 修繕積立基金 - 権利金 - 駐車場/月額料金 -/- 土地の敷金/保証金 -/- 借地料/借地期間 -/- 土地権利 所有権 国土法届出要否 不要 用途地域 - 地勢 - 種別/構造 中古マンション/鉄筋コンクリート 向き 南西 築年月(築年数) 1998年 3月 (築28年) 所在階/階建 8階/8階建 地下1階 棟総戸数/販売戸数 62戸/- 管理組合有無 - 管理形態 管理会社に全部委託 管理員の勤務形態 日勤 管理会社 (株)東京ディフェンス 取引態様 仲介 現況 空家 引渡し 相談 建築確認番号 - 物件番号 101824807 取引条件の有効期限 2026年03月10日 リフォーム 2026年4月
キッチン 浴室 トイレ 壁 床 全室
設備条件 - 陽当り良好
- 閑静な住宅地
- 眺望良好
- 室内洗濯機置場
- フローリング
- バルコニー
- 都市ガス
- 公営水道
- 公共下水
- エレベーター
- 2面バルコニー
- 敷地内ごみ置き場
- コンロ2口以上
- 食器洗い乾燥機
- システムキッチン
- 対面式キッチン
- コンロ3口
- 追焚機能浴室
- 浴室乾燥機
- 温水洗浄便座
- 独立洗面台
- ウォークインクロゼット
- 収納豊富
- TVモニタ付インターホン
- 防犯カメラ
- 24時間ゴミ出し可
備考 ★「ガーデンホーム笹塚」★
・「ガーデンホーム笹塚」は好立地!
京王線笹塚駅から徒歩約8分・幡ヶ谷駅から徒歩約13分、丸ノ内線方南町駅から徒歩約17分。
2路線3駅利用可能な便利な立地です。
・充実の室内設備が魅力!
システムキッチン・食洗機・浴室乾燥機・追焚き機能・WIC・SIC・収納多数、他。
【掲載物件更新】
都心を中心に世田谷区や目黒区など城南地域の不動産情報も豊富にご紹介しております。素敵なマイホームを探しましょう。
仕事帰りにも対応可能な行動力が私たちが大切にしていることです。
お客様に将来「この不動産を購入して良かった、シルバシティで紹介を受けて良かった」と言われる仕事を目指します。
そのために、押し売りの営業は一切いたしません。
また、不動産の専門家が、住宅購入や資金計画など丁寧にご説明いたします。
お客様に喜んで頂けるよう、精一杯務めさせて頂きます。
☆城南地域・東京都心の不動産の事ならシルバシティへお任せください☆
TEL:0120-133-468取扱会社 - 株式会社シルバシティ
- 東京都目黒区青葉台3丁目2-12 ヤクシビル3階
- TEL:0120-133-468
- 東京都知事 (2) 第103963号
- 公益社団法人 東京都宅地建物取引業協会
※地図上に表示される物件の位置は付近住所に所在することを表すものであり、実際の物件所在地とは異なる場合がございます。
物件お問い合わせ
- 掲載物件数
-
件
- 本日の更新件数
-
件
- 会員物件数
-
件
同じエリアの中古マンション
この物件を見た方へのお勧め物件
- シャトレー渋谷
- 1億4,800万円 2LDK/102.77㎡
- 東京都渋谷区東2丁目
- 山手線「渋谷」駅 徒歩10分
- ウィズウィース渋谷神南N棟
- 1億5,800万円 1LDK/55.71㎡
- 東京都渋谷区神山町
- 山手線「渋谷」駅 徒歩10分
- 広尾ガーデンフォレストH棟
- 1億6,800万円 2LDK/72.06㎡
- 東京都渋谷区広尾4丁目
- 日比谷線「広尾」駅 徒歩9分
- 広尾マンション
- 1億2,990万円 3LDK/87.92㎡
- 東京都渋谷区広尾1丁目
- 山手線「恵比寿」駅 徒歩10分
- ライオンズマンション広尾南
- 1億2,800万円 2LDK/50.38㎡
- 東京都渋谷区恵比寿2丁目
- 日比谷線「広尾」駅 徒歩9分

















