世田谷区上北沢3丁目
世田谷区上北沢3丁目に中古戸建が登場!
京王線上北沢駅から徒歩約6分・八幡山駅から徒歩約13分・桜上水駅から徒歩約5分。
3駅利用可能な便利な立地です。
2階建て。南西向き。並列駐車2台可。建物面積約119.90㎡。4LDK。
京王線の不動産の事ならシルバシティへお任せください。
-
ローンシミュレーションこの物件を購入した場合の、月々の支払い価格の一例です。借り入れを保証するものではございません。
- 返済期間
-
- 金利
-
- ボーナス時の増額(1回分)
-
- 借入金額:
-
- 頭金:
-

- 毎月の返済額:
(※元利均等方式 金利5.00%まで ※返済年数5~50年まで入力できます)
(※ボーナスは年2回で計算しています。1000万円まで入力できます)
(※物件購入時、その他諸費用が発生する場合がございます)
情報の見方担当者のコメント 梅津修二

- 京王線上北沢駅から徒歩約6分、新宿・渋谷・池袋といった主要都市へダイレクトアクセスが可能で、通勤・通学も快適。通り道には桜並木が250mにわたって続き、四季の移ろいを楽しめる絶好のロケーションです♪専有面積100㎡越えの木造2階建て!4LDK+並列駐車2台分!南西向きで陽当たり良好、明るく開放感のある住まいです。お問い合わせお待ちしております。
ポイント・特徴
物件概要
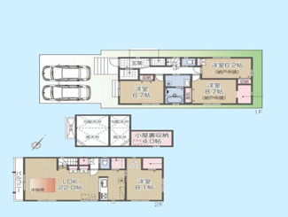
【中古一戸建】 物件番号:93861555 情報更新日:2025年12月09日 次回更新予定日:2025年12月23日所在地 東京都世田谷区上北沢3丁目 交通 間取り/詳細 4LDK/
洋室 6.2帖 1室/洋室 6.7帖 1室/洋室 8.7帖 1室/洋室 8.1帖 1室/LDK 22.0帖 1室建物面積(坪数) 119.90㎡(36.26坪) 価格 1億3,580万円 駐車場/月額料金 有(2台)/0円 土地の敷金/保証金 -/- 借地料/借地期間 -/- 土地権利 所有権 土地面積(坪数) 120.07㎡(36.32坪) 傾斜地部分面積 - 路地状敷地 - 私道負担面積/セットバック -/無 高圧線下面積 - 地目/地勢 宅地/- 接道状況 一方(南西 公道 5.4m 間口 5.2m) 建ぺい率/容積率 50%/100% 用途地域 第一種低層住居専用 都市計画 市街化区域 種別/構造 中古一戸建/木造 階建 2階建 築年月(築年数) 2023年 1月 (築2年) 総区画数/販売区画数 1区画/1区画 向き 南西 現況 居住中 その他の法令上の制限 高度地区/準防火地域/高さ最高限度有/敷地面積最低限度有 取引態様/引渡時期 仲介/相談 建築確認番号 - 物件番号 93861555 取引条件の有効期限 2025年12月23日 設備条件 - 陽当り良好
- 閑静な住宅地
- 室内洗濯機置場
- フローリング
- バルコニー
- 都市ガス
- 公営水道
- 公共下水
- 24時間換気システム
- 駐車2台可
- ガスコンロ
- コンロ2口以上
- 食器洗い乾燥機
- システムキッチン
- 対面式キッチン
- コンロ3口
- 追焚機能浴室
- 浴室乾燥機
- 温水洗浄便座
- トイレ2ヶ所
- エアコン
- 床暖房
- ウォークインクロゼット
- ウォークインシューズクロゼット
- 屋根裏収納
- 収納豊富
- TVモニタ付インターホン
- 宅配ボックス
- 複層ガラス
備考 ★「世田谷区上北沢3丁目 中古戸建」★
・「世田谷区上北沢3丁目 中古戸建」は好立地!
京王線上北沢駅から徒歩約6分・八幡山駅から徒歩約13分・桜上水駅から徒歩約5分。
3駅利用可能な便利な立地です。
・「世田谷区上北沢3丁目 中古戸建」充実の魅力!
食洗機・浄水器・浴室乾燥機・追い焚き機能・エアコン・床暖房、他。
【掲載物件更新】
都心を中心に世田谷区や目黒区など城南地域の不動産情報も豊富にご紹介しております。素敵なマイホームを探しましょう。
仕事帰りにも対応可能な行動力が私たちが大切にしていることです。
お客様に将来「この不動産を購入して良かった、シルバシティで紹介を受けて良かった」と言われる仕事を目指します。
そのために、押し売りの営業は一切いたしません。
また、不動産の専門家が、住宅購入や資金計画など丁寧にご説明いたします。
お客様に喜んで頂けるよう、精一杯務めさせて頂きます。
☆城南地域・東京都心の不動産の事ならシルバシティへお任せください☆
TEL:0120-133-468取扱会社 - 株式会社シルバシティ
- 東京都目黒区青葉台3丁目2-12 ヤクシビル3階
- TEL:0120-133-468
- 東京都知事 (2) 第103963号
- 公益社団法人 東京都宅地建物取引業協会
※地図上に表示される物件の位置は付近住所に所在することを表すものであり、実際の物件所在地とは異なる場合がございます。
物件お問い合わせ
- 掲載物件数
-
件
- 本日の更新件数
-
件
- 会員物件数
-
件
価格と住所の近い物件
- 世田谷区上馬3丁目
- 1億4,000万円 2LDK/90.87㎡
- 東京都世田谷区上馬3丁目
- 東急田園都市線「駒沢大学」駅 徒歩6分
- 世田谷区上馬5丁目
- 1億4,990万円 3LDK/110.24㎡
- 東京都世田谷区上馬5丁目
- 東急田園都市線「駒沢大学」駅 徒歩15分
- 世田谷区下馬4丁目
- 1億1,980万円 3LDK/80.04㎡
- 東京都世田谷区下馬4丁目
- 東急東横線「祐天寺」駅 徒歩16分
- 世田谷区船橋1丁目
- 1億1,000万円 5LDK/114.27㎡
- 東京都世田谷区船橋1丁目
- 小田急小田原線「千歳船橋」駅 徒歩7分
- 世田谷区北沢1丁目
- 1億6,998万円 4LDK/99.04㎡
- 東京都世田谷区北沢1丁目
- 小田急小田原線「下北沢」駅 徒歩10分











