大田区大森東4丁目
大田区大森東4丁目に中古戸建が登場!
京急本線大森東駅から徒歩約11分・大森町駅から徒歩約12分・羽田空港線昭和島駅から徒歩約18分。
2路線3駅利用可能な便利な立地です。
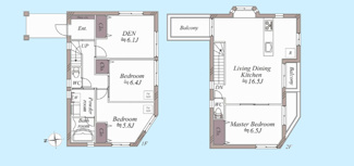
旗竿地。2台駐車可能。建物面積約91.26㎡。3SLDK+カースペース。
京急本線・羽田空港線の不動産の事ならシルバシティへお任せください。
-
ローンシミュレーションこの物件を購入した場合の、月々の支払い価格の一例です。借り入れを保証するものではございません。
- 返済期間
-
- 金利
-
- ボーナス時の増額(1回分)
-
- 借入金額:
-
- 頭金:
-

- 毎月の返済額:
(※元利均等方式 金利5.00%まで ※返済年数5~50年まで入力できます)
(※ボーナスは年2回で計算しています。1000万円まで入力できます)
(※物件購入時、その他諸費用が発生する場合がございます)
情報の見方担当者のコメント 梅津修二

- 京急本線大森東駅から徒歩約11分!駅前商店街あるためお買い物や食事等楽しめます♪木造2階建、建物面積約91.26㎡の3SLDK。お子様も個室が持てるゆとりある間取りで南東向きにつき明るい日差しが差し込む日当たりの良い室内。お問い合わせお待ちしております。
ポイント・特徴
物件概要
【中古一戸建】 物件番号:100894731 情報更新日:2026年02月09日 次回更新予定日:2026年02月23日所在地 東京都大田区大森東4丁目 交通 間取り/詳細 3LDK/ 建物面積(坪数) 91.26㎡(27.6坪) 価格 6,990万円 駐車場/月額料金 -/- 土地の敷金/保証金 -/- 借地料/借地期間 -/- 土地権利 所有権 土地面積(坪数) 101.43㎡(30.68坪) 傾斜地部分面積 - 路地状敷地 - 私道負担面積/セットバック -/無 高圧線下面積 - 地目/地勢 宅地/- 接道状況 -(北 私道 4.0m) 建ぺい率/容積率 60%/200% 用途地域 準工業 都市計画 市街化区域 種別/構造 中古一戸建/木造 階建 2階建 築年月(築年数) 2006年 8月 (築19年) 総区画数/販売区画数 1区画/1区画 向き 南東 現況 空家 その他の法令上の制限 高度地区/準防火地域 取引態様/引渡時期 仲介/即時 建築確認番号 - 物件番号 100894731 取引条件の有効期限 2026年02月23日 設備条件 - 陽当り良好
- 閑静な住宅地
- 眺望良好
- 旗竿地
- 室内洗濯機置場
- フローリング
- バルコニー
- 都市ガス
- 公営水道
- 公共下水
- 24時間換気システム
- 両面バルコニー
- 駐車2台可
- コンロ2口以上
- 食器洗い乾燥機
- システムキッチン
- 対面式キッチン
- コンロ3口
- 追焚機能浴室
- 浴室乾燥機
- 温水洗浄便座
- トイレ2ヶ所
- 浴室1坪以上
- 収納豊富
- TVモニタ付インターホン
備考 ★「大田区大森東4丁目 中古戸建」★
・「大田区大森東4丁目 中古戸建」は好立地!
京急本線大森東駅から徒歩約11分・大森町駅から徒歩約12分・羽田空港線昭和島駅から徒歩約18分。
2路線3駅利用可能な便利な立地です。
・「大田区大森東4丁目 中古戸建」充実の魅力!
システムキッチン・食洗機・浄水器・浴室乾燥機・追焚き機能・納戸・収納多数、他。
【掲載物件更新】
都心を中心に世田谷区や目黒区など城南地域の不動産情報も豊富にご紹介しております。素敵なマイホームを探しましょう。
仕事帰りにも対応可能な行動力が私たちが大切にしていることです。
お客様に将来「この不動産を購入して良かった、シルバシティで紹介を受けて良かった」と言われる仕事を目指します。
そのために、押し売りの営業は一切いたしません。
また、不動産の専門家が、住宅購入や資金計画など丁寧にご説明いたします。
お客様に喜んで頂けるよう、精一杯務めさせて頂きます。
☆城南地域・東京都心の不動産の事ならシルバシティへお任せください☆
TEL:0120-133-468取扱会社 - 株式会社シルバシティ
- 東京都目黒区青葉台3丁目2-12 ヤクシビル3階
- TEL:0120-133-468
- 東京都知事 (2) 第103963号
- 公益社団法人 東京都宅地建物取引業協会
※地図上に表示される物件の位置は付近住所に所在することを表すものであり、実際の物件所在地とは異なる場合がございます。
物件お問い合わせ
- 掲載物件数
-
件
- 本日の更新件数
-
件
- 会員物件数
-
件
同じエリアの中古一戸建
価格と住所の近い物件
- 大田区南馬込4丁目
- 6,780万円 2LDK/80.51㎡
- 東京都大田区南馬込4丁目
- 都営浅草線「西馬込」駅 徒歩15分
- 大田区南久が原2丁目
- 7,280万円 1LDK/64.57㎡
- 東京都大田区南久が原2丁目
- 東急池上線「久が原」駅 徒歩5分
- 大田区中央2丁目
- 6,490万円 3LDK/70.20㎡
- 東京都大田区中央2丁目
- 京浜東北線「大森」駅 徒歩19分
- 大田区上池台5丁目
- 8,580万円 4LDK/151.12㎡
- 東京都大田区上池台5丁目
- 都営浅草線「西馬込」駅 徒歩15分
- 大田区南久が原1丁目
- 1億2,000万円 4LDK/128.73㎡
- 東京都大田区南久が原1丁目
- 東急池上線「久が原」駅 徒歩6分












